Accueil » Fontaine La Mallet – Rare: Terrain libre de constructeur + Permis de construire Validé







Votre conseiller
Anthony MICHEL
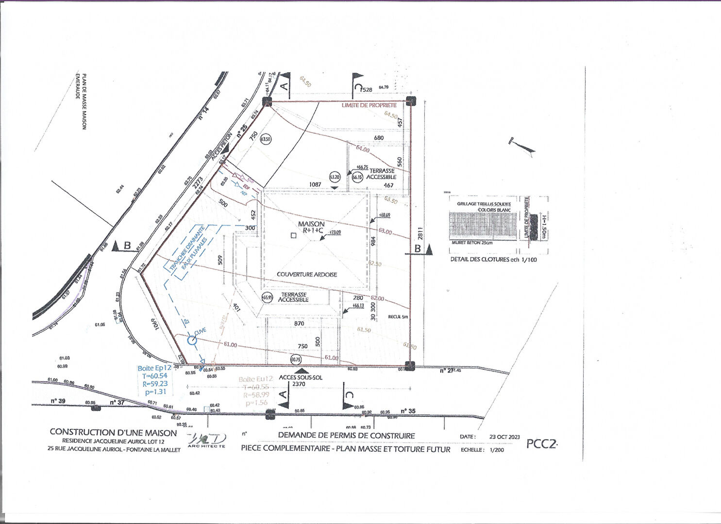
Situé au coeur d’un secteur en plein développement, ce terrain exceptionnel de 652 m² offre une opportunité rare pour concrétiser un projet de construction moderne dans l’une des communes les plus recherchées du secteur havrais.
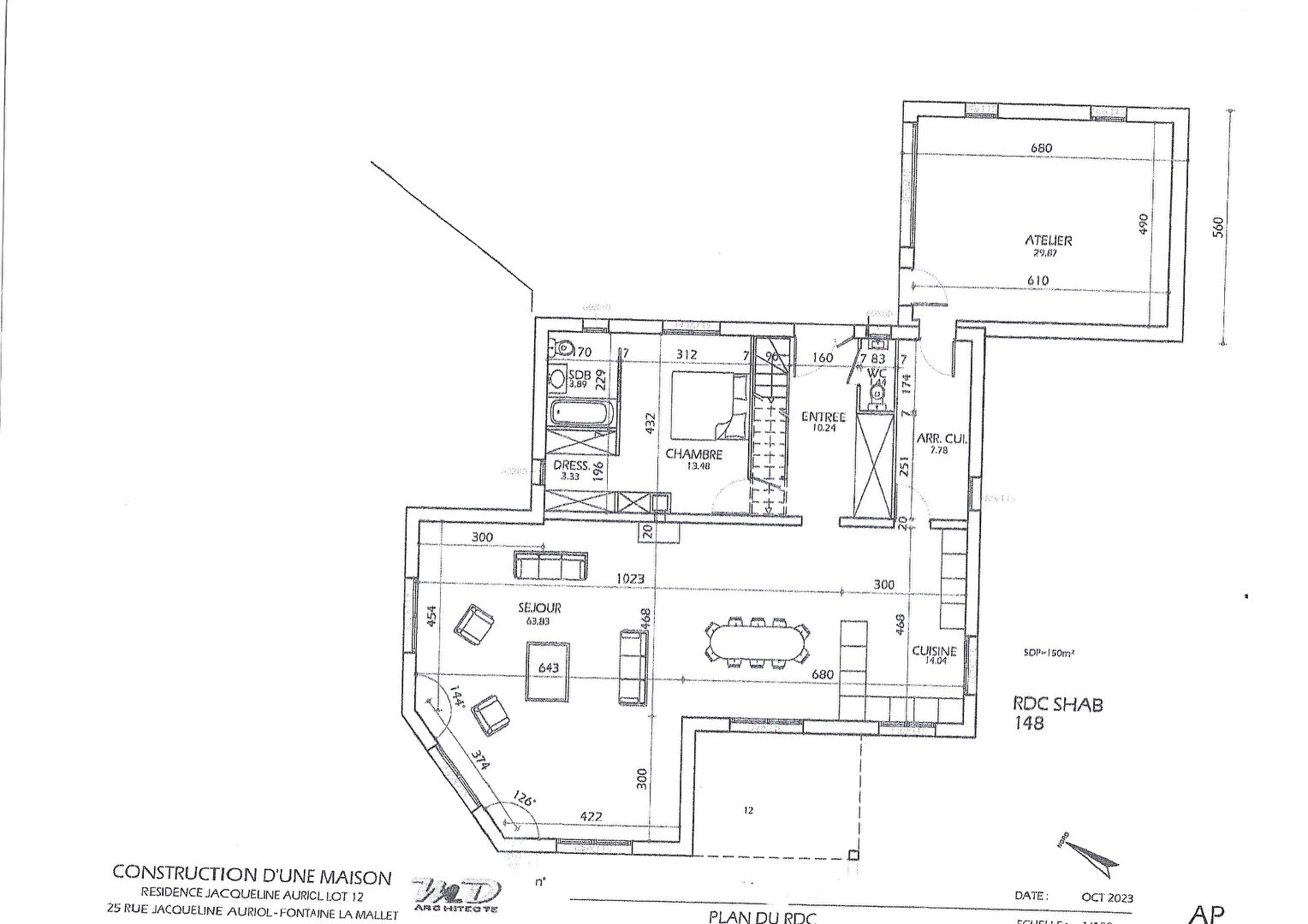
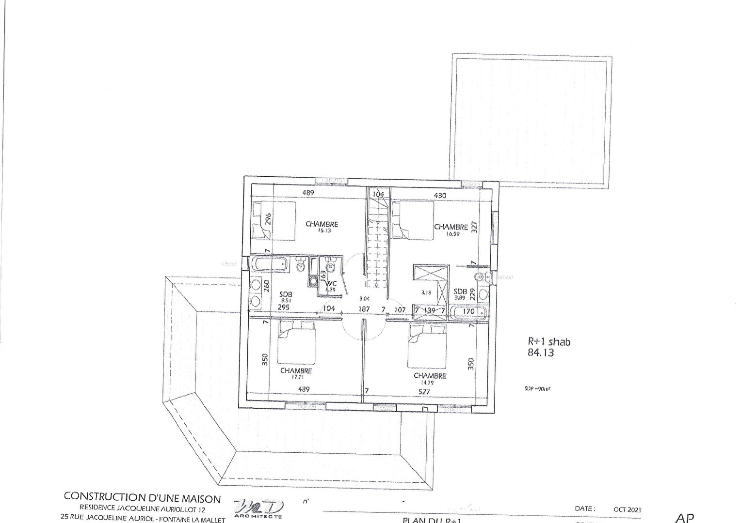
Les plans proposés par un constructeur (photos et plans) permettent d’imaginer aisément votre future habitation, tout en conservant une totale liberté de choix du constructeur.
LES ATOUTS QUI RENDENT CE TERRAIN UNIQUE:
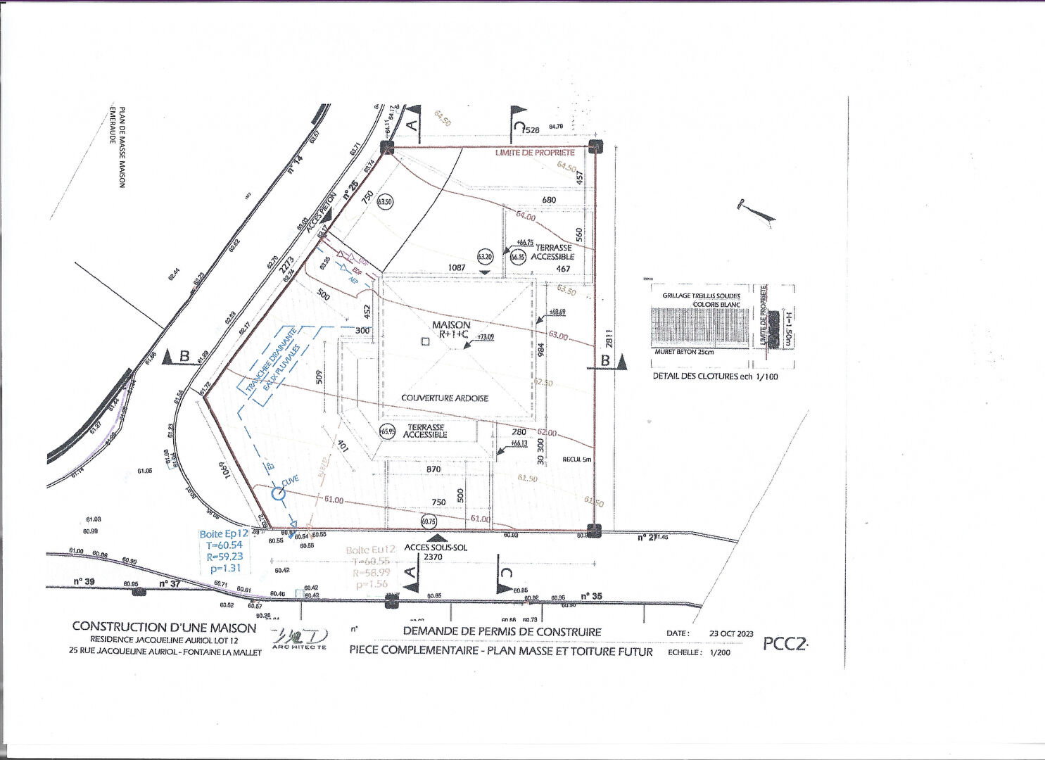
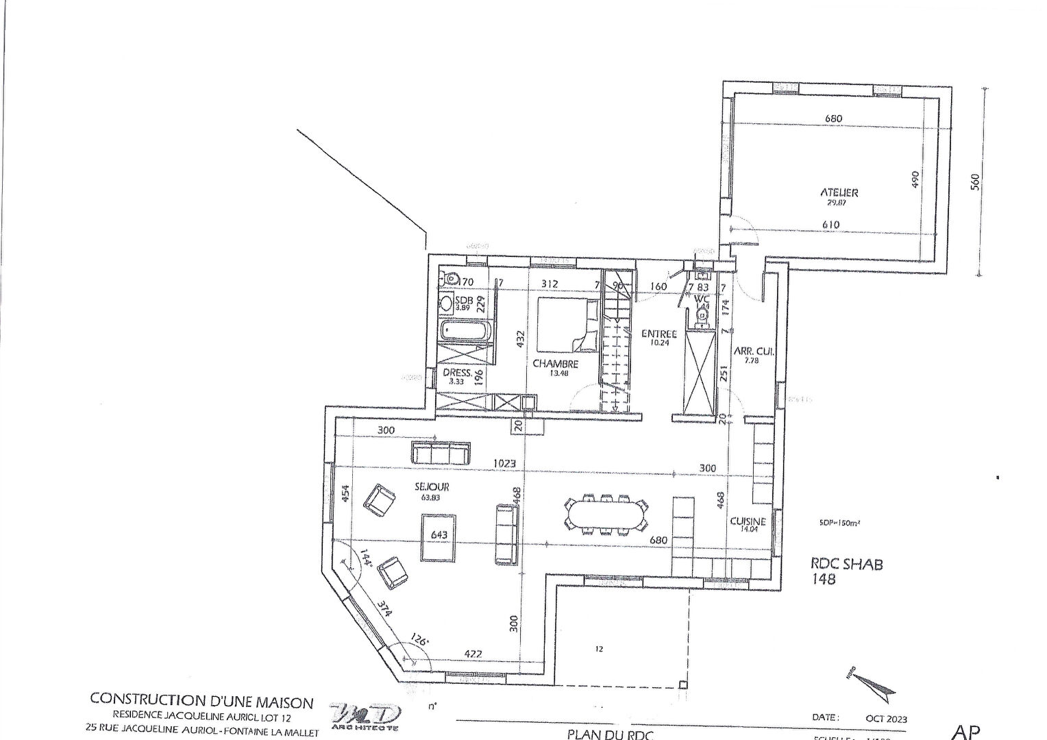
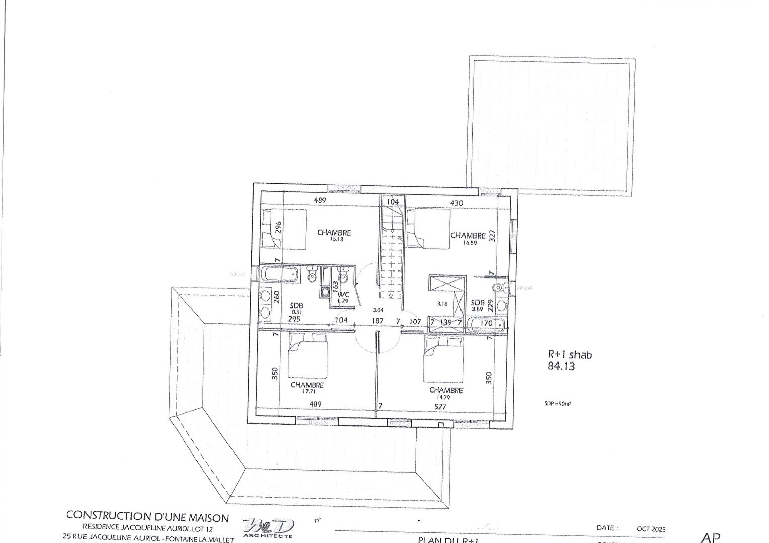
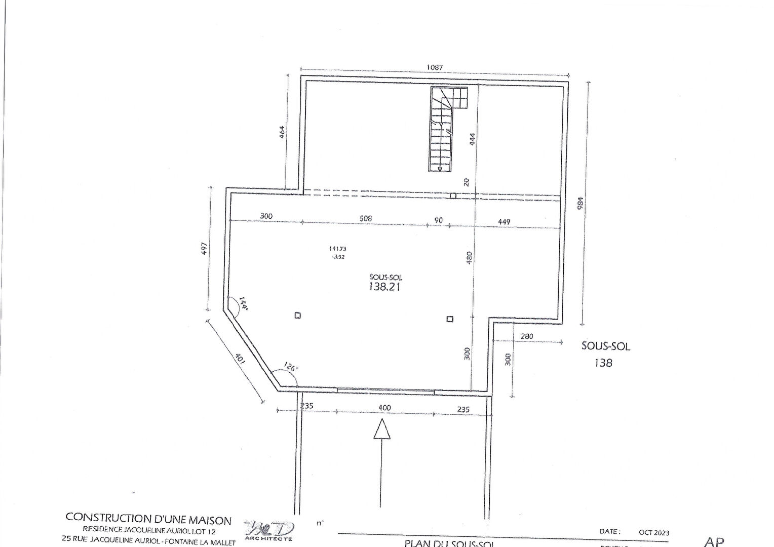
– PERMIS DE CONSTRUIRE DEJA VALIDE donc plus de démarche administrative , le permis pour une construction de 240 m² est déjà validé, et les plans du projet disponibles, d’où un gain de temps considérable pour la réalisation de votre future construction.
– UN ENVIRONNEMENT EN PLEINE EXPANSION:
le terrain se situe dans un quartier neuf et dynamique où naissent actuellement de nombreuses constructions. Un cadre idéal pour s’installer durablement.
– A PROXIMITE IMMEDIATE:
Des Commerces dynamiques
Des Ecoles
Des Services
La Mairie et un coin poste
La voirie est neuve et parfaitement aménagée et éclairée, donc la tranquillité pour de nombreuses années.
UN EMPLACEMENT PENSE POUR L’AVENIR:
– ce terrain constitue une opportunité idéale pour construire une maison familiale ou un projet contemporain valorisant dans une commune calme et très recherchée.
PRIX DE VENTE: 177000 euros honoraires inclus:
un tarif cohérent pour un terrain rare, prêt à bâtir et avec un permis de construire déjà validé.
Ce terrain vous intéresse ? Contactez votre conseiller, Anthony MICHEL dès maintenant pour organiser une visite.
Progressia Immobilier – Pour votre bien et celui de vos projets.
Anthony MICHEL (EI) Agent Commercial – Numéro RSAC : 944 538 073 – Le Havre.
DPE non renseigné
Type de bien : TERRAIN
Type de transaction : Vente
Code postal : 76290
Ville : FONTAINE LA MALLET
Bien en copropriété : Non
Prix : 177000.00 €
Surface : 652 m2
Nombre niveaux : 1
Ascenseur : Non
Grenier : Non
Interphone : Non
Digicode : Non
Visiophone : Non
Panneau Solaire : Non





